Котел КВ 3.0 РПК в Ярославле

  • Модель с ручным забросом топлива в топку и полуавтоматическим сбросом золы шлака при помощи поворотных опрокидывающихся колосников
  • Дутье и тяга регулируются шиберами
  • Надежная работа котла обеспечивается изготовлением трубной системы из трубы сталь 10 повышенной прочности
Изготовим
под заказ
Цена с НДС на котел КВ 3.0 РПК с доставкой в
от 0 рублей
Условия в
В наличии на складе
Доставка ТК по России и Казахстану
Безналичный расчет
Есть в наличии
Можно купить в лизинг
Котел с РПК топкой
Котел с топкой РПК
Котел с РПК водогрейный
Водогрейный котел с РПК
Котел с РПК промышленный
Промышленный котел с РПК
Топка с поворотными колосниками РПК
Топка РПК с поворотными колосниками
Котел с РПК топкой
Котел с РПК водогрейный
Котел с РПК промышленный
Топка с поворотными колосниками РПК
Видеообзор
Технические
характеристики
Описание
товара
Монтаж и схемы
подключения
Сертификаты
и гарантии
Подбор
котла

Технические характеристики котла КВ 3.0 РПК

Вид Водогрейный
Встроенный расширительный бак Нет
Встроенный циркуляционный насос Нет
Количество контуров Одноконтурный
Размещение Напольный
Тип камеры сгорания Открытый
Тип питания Трехфазное
Управление Электронное
Энергонезависимый Нет
Марка HeatExpert
Энергоэффективность Высокая
Бренд HEATEXPERT
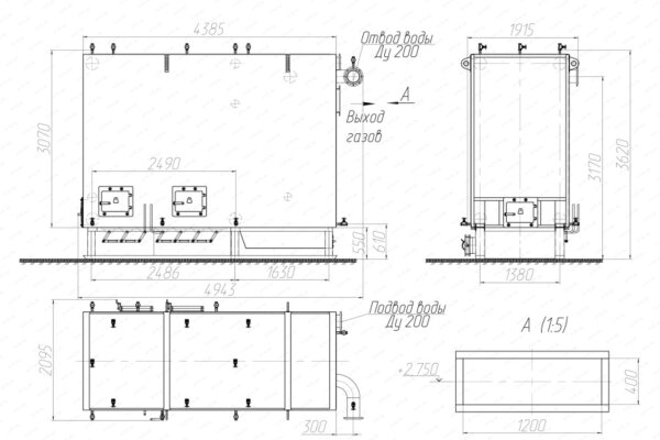
Котел КВм 3.0 с РПК чертеж
Чертеж котла КВм 3.0 с РПК

Водогрейный котел КВм 3.0 МВт с топкой РПК в Ярославле

Российский котел с топкой РПК мощностью 3.0 МВт предназначен для отопления и горячего водоснабжения жилых и административных зданий, больших промышленных помещений и производственных предприятий, работает с принудительной циркуляцией теплоносителя в закрытых и в открытых системах теплоснабжения.

Промышленный отопительный котел с топкой РПК мощностью 3.0 МВт обеспечивает подогрев воды температурой до 95-115 °С, с рабочим давлением 0,3-0,6 (3,0-6,0) МПа (кгс/см). Площадь отапливаемого помещения 25000 – 32900 м2.

Принцип работы полумеханического котла КВм 3.0 МВт с поворотными колосниками 

Топливо вручную загружается в топку котла через загрузочную дверку и равномерно распределяется по решетке, высотой не более 200 мм.

Дымовые газы через окно расположенное на задней стенке топки выходят из топочной камеры. Пройдя две конвективные ступени, дымовые газы выводятся в выходное окно на задней стенке котла. Сверху конвективной части имеется люк для очистки конвективных поверхностей нагрева от сажистых отложений.

Образующиеся зола и шлак сгребаются в зону поворотных колосников и сбрасываются в канал шлакоудаления поворачивая рычаг. В канале может стоять вагонетка или транспортер шлакоудаления.

Котельный блок

Водонагревательный котел 3.0 МВт с РПК выполняется из двух блоков – котельный блок и топка, которые легко стыкуются при монтаже.

Котельный блок представляет собой гладкотрубную горизонтальную стальную конструкцию, состоящую из трубной системы и каркаса с теплоизоляционными материалами, обшитого листовой сталью. Топочная часть выполняется из газоплотных водотрубных экранов, а конвективная состоит из сварных конвективных панелей и параллельно установленных в шахматном порядке труб. На фронте котлоагрегата устанавливается топочная дверка для загрузки топлива.

Топочная часть

Водогрейный котел 3.0 с топкой с поворотными колосниками РПК изготавливается с большим объемом топочной камеры, что позволяет полностью прогорать топливу, без выноса золы в конвективную часть и дымовую трубу. Газоплотное исполнение топки исключает утечку дымовых газов в котельный зал. Развитая поверхность нагрева котла, снижает температуру уходящих газов до 200-180 °С, тем самым максимально уменьшая теплопотери. Качественная теплоизоляция исключает присосы холодного воздуха. При помощи поворотных колосников зола и шлак сбрасывается в зольный бункер, тем самым облегчая работу кочегару.

Топка с поворотными колосниками РПК

Топка РПК может быть выполнена с чугунной колосниковой решеткой и водоохлаждаемой беспровальной решеткой.

Поворотная опрокидывающаяся решетка состоит из чугунных колосников, которые крепятся к общему валу отдельными секциями. Очистка топки от шлака осуществляется с помощью наклонной секции, через проем, в шлаковый бункер, далее в канал шлакозолоудаления.

Топка РПК может быть изготовлена с передним, средним, задним рядом опрокидывающихся колосников в зависимости от расположения канала шлакоудаления в отопительной котельной.

Конвективные поверхности нагрева

Трубы в конвективной части располагаются в шахматном порядке. Это обеспечивает более интенсивное и полное омывание труб горячими газами. Газы в конвективной части проходят два хода и выходят через газоход в верхней части задней стенки агрегата.

Промышленный нагревательный котел КВм 3 0 МВт с топкой РПК имеет развитую конвективную часть, которая снижает температуру уходящих газов из котла до 200 -180 °С. Значительное снижение температуры уходящих газов исключает теплопотери, тем самым обеспечивая значительную экономию топлива.

Конвективную часть можно рассматривать как экономайзер. Гидравлическая схема наших котлов позволяет использовать принцип противотока, передавая тепло уходящих газов теплоносителю.

Трубная система имеет множество перегородок, для увеличения скорости воды в котле и исключения застойных зон и локального перегрева поверхностей нагрева. Кроме того, турбулизация водяного потока препятствует образованию пристенного кипения и отложения накипи на поверхностях нагрева. А многоходовая циркуляция позволяет избежать неравномерного прогрева котла. Твердотопливные водонагревательные котлы 3.0 МВт РПК работают с принудительной циркуляцией теплоносителя, которую обеспечивает сетевой насос.

Качественная изоляция

Стальной отопительный котел 3.0 МВт с РПК выполнен со съемной, облегченной изоляцией из плит ПТЭ. Плиты закрепляются на каркасе, обшивка теплоагрегата выполняется из стальных листов. Преимущества легкой изоляции - максимальная монтажная готовность котельного блока, его компактность, минимизация потерь КПД котла через потери тепла в окружающую среду, за счет высокого качества обмуровки.

Монтаж и комплектация

Цена на отечественный котел КВм 3.0 МВт с РПК для отопления включает котельный блок, топку, колосники, вентилятор поддува, вентили, предохранительные клапаны, термометры, манометры, трехходовые краны, паспорт и инструкцию по эксплуатации. Котлоагрегат поставляется блоками максимальной заводской готовности.

Стационарный водогрейный котел 3,0 МВт с топкой РПК устанавливается в котельной на специально подготовленную ровную поверхность и закрепляется анкерными болтами. Далее подсоединяется по воде, устанавливается запорная арматура на подводящем и отводящем трубопроводе, устанавливаются предохранительные клапаны, дренажи, воздушники и контрольно измерительные приборы. В воздушный короб по месту врезается вентилятор, монтируется газоход.

Купить котел КВм 3.0 МВт с РПК

Для того, что бы купить котел 3.0 МВт с топкой РПК в Ярославле вы можете сделать заявку в отдел сбыта по телефону 8-800-700-06-43, либо оформить заявку. Менеджеры дадут консультацию по подбору вспомогательного оборудования для выбранных вами моделей и рассчитают стоимость доставки. Транспортирование котлоагрегата и вспомогательного оборудования может осуществляться автотранспортом, ж/д полувагонами и речным транспортом.

Монтаж и схемы подключения котла КВ 3.0 РПК

Водогрейный стальной отопительный котел КВ 3.0 РПК, предназначен для получения горячей воды номинальной температурой на выходе из котла от 95 до 115 °С рабочим давлением до 0,6 (6,0) МПа (кгс/см), используемой в системах централизованного теплоснабжения на нужды отопления, горячего водоснабжения. Устанавливается в производственных, промышленных и отопительных котельных.

Монтаж и подключение котла КВ 3.0 РПК

Схема подключения водогрейного котла с топкой РПК

Схема подключения котла с топкой РПК

Сертификаты и гарантии котла КВ 3.0 РПК

Водогрейный котел КВ 3.0 РПК имеет гарантийный срок 24 месяца. Срок работы при соблюдении правил монтажа и эксплуатации оборудования 10 лет.

Водогрейные котлы сертификат
Сертификат на водогрейные котлы
Сертификат на водогрейные котлы на газе и жидком топливе
Сертификат на водогрейные котлы на газе и жидком топливе

Подберите мощность котла для вашего объекта

Тип здания
Регион
Населенный пункт
Наружный объем здания
3)
Отапливаемый подвал
Объем подвала
3)

Отзывы о продукции

Другая похожая продукция

КВм котел с ЗП РПК
Котел КВм 3.0 ЗП РПК
Максимальная тепловая мощность, МВт 3
Топливо Твердое, Уголь
Вид топки ЗП РПК, Механическая
Отапливаемая площадь, м² от 18400 до 24100
2 900 000 ₽
Котел КВм 3.0 ТШПМ
Котел КВм 3.0 с ТШПМ
Максимальная тепловая мощность, МВт 3
Топливо Твердое, Уголь
Вид топки ТШПМ, Механическая
Отапливаемая площадь, м² от 25000 до 32900
2 273 000 ₽
КВм котел 3.0 с ТЛПХ
Котел КВм 3.0 с ТЛПХ
Максимальная тепловая мощность, МВт 3
Топливо Твердое, Уголь
Вид топки ТЛПХ, Механическая
Отапливаемая площадь, м² от 25000 до 32900
5 517 000 ₽
Котел с РПК топкой
Котел КВ 2.5 РПК
Максимальная тепловая мощность, МВт 2.5
Топливо Твердое, Уголь
Вид топки РПК, Механическая
Отапливаемая площадь, м² от 20900 до 27400
2 060 100 ₽
Цена по
запросу